Lukas Scheck
Anja Spirig
Simone Mahler
Tosca Zwahlen
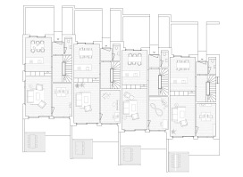
Das Grundstück am Rundiweg liegt direkt unterhalb der Weinberge und der Reservezone auf einer aufgeschütteten Geländekanzel mit Weitsicht über Uetikon. Eine Reihe mit acht in der Höhe und in der Tiefe gestaffelten zweigeschossigen 5.5-Zimmer-Reihenhäuser besetzt die vordere Geländekante. Gegen die Weinberge hin, fügen sich zwei dreigeschossige leicht höher gelegene Mehrfamilienhäuser mit Geschosswohnungen in das Gelände ein. Der innere Siedlungsbereich ist um einen attraktiv gestalteten Siedlungsplatz mit einer begrünten Pergola und einem Brunnen angeordnet. Die Betonmauern dienen als Stützmauern und Sitzgelegenheiten. Vor den Reihenhäusern schaffen ummauerte, begrüne Innenhöfe einen Übergang zu den Wohnungen. Die Fassaden mit grünem Kratzputz ergeben zusammen mit den dunkel einbrennlackierten Holzmetallfenstern und den gestockten Umgebungsmauern ein zurückhaltendes und wertiges Erscheinungsbild.
Totalunternehmer: Gross Generalunternehmung AG
Statik: K2S Bauingenieure AG
Umgebung: Parbat Landschaftsarchitektur GmbH
HLS-Planung: Schoch Reibenschuh AG
Elektroplanung: Marquart AG
Bauphysik: GS Bauphysik & Akustik
Brandschutz: Thomas Lüem Partner AG










