Lulkuqe Gunzenreiner
Luca Kohler
Daniel Tylmann
Alba Villanueva Gimeno
Berta Jové Batallé
Leonie Follert
Fiona Nüssli
Enrique Arazuri Marzal
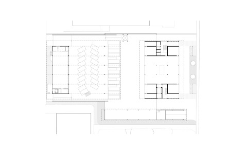
Das Projekt schlägt eine einfache und klare Struktur vor, die sich harmonisch in den industriellen Kontext des Ortes einfügt. Das langgestreckte Grundstück grenzt auf der einen Seite an die Industriestrasse und auf der gegenüberliegenden Seite an den Erlenring. Gegliedert ist es in zwei differenzierte Teile mit unterschiedlichen Zufahrten. Auch volumetrisch werden die beiden Hauptnutzungen des Programms durch den Werkhof- und Manövrierplatz in der Mitte getrennt. Die einfache Geometrie der beiden Hauptbauten geben dem stark befahrenen Grundstück und der volumetrisch sehr heterogenen Umgebung eine beruhigende Selbstverständlichkeit. Eine Pergola grenzt das Areal gegenüber dem Park ab und schafft den Übergang zur begrünten Aussenanlage. Die Wettbewerbsjury überzeugte diese ortsbauliche und betriebliche Einfachheit und Stringenz. Mit der entflochtenen Verkehrsführung der beiden Betriebe werden viele potenzielle Konflikte bereits im Wettbewerbsprojekt konzeptuell gelöst. Die geordneten Geometrien und beherrschten Konstruktionen schaffen einen rational geprägten gestalterischen Ausdruck und ein architektonisch fein gegliedertes Bild. Das Nebeneinander von Massivbau im Sockel und Holzbau im darüberliegenden Bereich wirkt selbstverständlich und harmonisch. Die Modularität zahlreicher Elemente schafft gute Voraussetzungen für eine nachhaltige Bauweise.
Baumanagement: Takt Baumanagement AG
Statik: Solubois ZH GmbH
Umgebung: suisseplan Ingenieure AG
HLSE-Planung: 3-Plan AG
Bauphysik: Gartenmann Engineering AG
Brandschutz: Zostera GmbH
Verkehrsplanung: Ribi + Blum AG
Türplanung: Moser Sicherheit GmbH







