Dario Oechsli
Anja Spirig
Jon Rozzi
Berta Jové
Tilla Denzler
Benjamin Heller
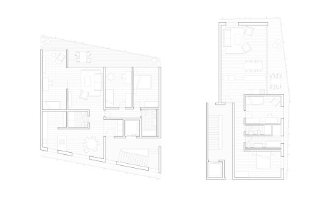
Die Baufirma Ernst Herzog verlegt ihren Werkhof an den Stadtrand von Frauenfeld. Auf dem frei werdenden Areal nahe beim Bahnhof entsteht eine neue Wohnsiedlung mit zweiundachtzig Wohnungen. Das Baufeld liegt zwischen der Bahnlinie und dem Flussraum der Murg. Gegen das Gleisfeld hin schliesst ein langer Gebäuderiegel den Raum ab, während zum Fluss hin drei locker gesetzte Punktbauten den Grünraum in die Überbauung hineinfliessen lassen. Die angrenzenden Nachbargebäude werden in die Anlage miteinbezogen. Eine ausgewogene Gliederung lässt bestehende und neue Bauten an den hohen Qualitäten der Aussenräume teilnehmen. Die Freiraumgestaltung lebt von der für einen Flussraum typischen Vegetation und den grosszügigen Ruderalflächen. Eng mit der Umgebung verknüpft ist auch die Fassadengestaltung. Durch die umlaufenden Balkonschichten, die als Filter zwischen innen und aussen funktionieren, erhalten die Gebäude einen offenporigen Charakter. Die Materialien Holz und Beton unterstreichen den naturnahen und rohen Charakter der Siedlung. Durch die gleichartige Fassadengestaltung aller vier Gebäude wird die Wohnsiedlung als Einheit wahrgenommen, kann aber dennoch auf die verschiedenen Ausrichtungen Rücksicht nehmen.














