Lukas Scheck
Florian Fawer
Hannah Huber
Leonie Follert
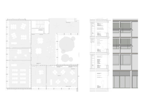
Die neue Schulanlage Sonnmatt liegt im Grüngürtel von Uzwil, direkt neben dem bestehenden Seniorenzentrum. Schule und Alterszentrum sollen eine campusartige Anlage bilden und zu einem generationenübergreifenden Begegnungsort werden. Dabei sollen die Gebäude durch den Park mit seinem Wegnetz zusammengebunden werden. Im Erdgeschoss, von aussen gut sichtbar, liegen alle öffentlichen Bereiche wie die Mensa, die Bibliothek, die Aula und die Sporthalle.
Das viergeschossige Schulhaus hat im Grundriss die Form eines Windrades und wird innen über einen begrünten Hof natürlich belichtet. Das grosse Volumen wird dadurch feingliedriger und verwurzelt sich stärker in der parkartigen Umgebung. Das ruhige Gebäude der Sporthalle ist niedriger und wird nahe an die Gupfenstrasse gesetzt, wo es einen städtebaulichen Akzent am Ortseingang von Uzwil setzt. Sporthalle und Schulhaus sind über einen breiten, gedeckten Aufenthaltsbereich miteinander verbunden. Die horizontale Linie des Daches wird auf beiden Bauten weitergezogen und bildet eine durchlaufende Sockelzone.











