Lukas Scheck
Alba Villanueva Gimeno
Berta Jové Batallé
Andrin Alpiger
Pablo Palomar Jiménez
Ramona Fäsi
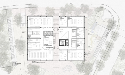
Das Schulhaus bildet den Schlussstein und gleichzeitig die Eingangsadresse des neuen Quartiers Bülachguss. Die vorgeschlagene Setzung auf dem dreieckigen Baufeld erlaubt ein kompaktes Gebäudevolumen mit einem grossen Spielplatz für die Schule und das Quartier. Das Zugangsgeschoss wird durch den geneigten Vorplatz mit dem öffentlichen Raum verknüpft und verbindet über die Querachse im Erdgeschoss den Spielplatz mit der Strasse. Die leichte Erhöhung des Eingangsgeschosses erlaubt zudem einen separaten Zugang zum Kindergarten und eine natürliche Abgrenzung der zugehörigen Aussenanlage. Über diese wird gleichzeitig die Turnhalle von Osten her belichtet. Das Gebäude ist als Stahlbetonskelett mit Stützen, Decken und Kernen konstruiert. Die Raumeinteilung aus Leichtbauwänden kann unabhängig vom Raster erfolgen und hat keine statische Funktion. Die Fassade ist in vorfabrizierter Holzbauweise vorgesehen und betont durch die Verkleidung mit Aluminiumblech den industriellen Charakter der Anlage.





