Andrin Alpiger
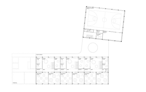
Die Nutzungen der Primarschule werden in zwei unterschiedliche Gebäude verteilt. Zusammen erzeugen sie eine klare Gliederung der Aussenräume in einen Zugangsplatz, einen gedeckten Eingangs- und Verbindungsbereich zwischen den Gebäuden und in einen grosszügigen Pausenhof, der sich zur Landschaft öffnet. Die Unterrichtsräume werden in ein niedriges, gestrecktes Gebäude eingebunden, welches drei Unterrichtscluster aneinanderreiht. Im Erdgeschoss erschliesst eine zum Pausenhof offene Vorzone die drei Eingänge, von welcher die Treppen in die Cluster hochführen. Diese werden um zentrale Räume gruppiert, welche verschiedene Gruppen- oder Einzelarbeiten ermöglichen. Die Blockzeitenräume und die Sporthalle formen das zweite, höhere Gebäude. Es stapelt die Nutzungen und hebt die Sporthalle ins Obergeschoss hoch. Dadurch wird im Erdgeschoss ein rundum verglaster Blockzeitenbereich freigespielt, der einen starken Bezug zum Aussenraum hat. Der Blockzeitenbereich bietet ein flexibles Grundrisslayout und entspricht in seinen Dimensionen dem Fussabdruck der Sporthalle.
Das Projekt spricht eine einfache Architektursprache mit traditioneller Holzkonstruktion, Satteldächern und naturbelassener Materialisierung. Die Qualität soll durch den massvollen, ökologischen Einsatz der Mittel und durch eine sorgfältige Ausformulierung der Gebäude und ihrer Zwischenräume entstehen. Es wird der Bezug zum landschaftlich geprägten Umfeld gesucht und im Innern der Anlage soll eine möglichst vielfältige Nutzung ermöglicht werden.






